... zuhause sein, wo andere Urlaub machen!

     

Verkaufsangebote:

BUH 12:  Ferienhaus im Feriengebiet Nordsee
Bild : 1  2  3  4  5  6  / Grundriss  

Grundriss des Objektes
Zoom
Adresse
PLZ: 26969
Ort: Burhave
Ferienregion: Nordsee
Bundesland: Niedersachsen
Land: Deutschland
Objektinformationen:
 
Finanzen           Wohnungsdaten              Details
Preis: 215900 €   Wohnfläche: 73 m²   Fahrstuhl: -
Mieteinnahmen pro Jahr ca.: 11350 €   Zimmer: 4   Balkon: -
Nebenkosten pro Monat ca.: 400 €   Schlafzimmer: 3   Terrasse: vorhanden
bisher vermietet: nein   Baujahr: 2000   Stellplatz: offener Stellplatz
Provision (incl. gesetzl. MwSt.): 3,57 %   Etage: EG   Kamin: -
         Schwimmbad: vorhanden

Standortpräsentation:
Beschreibung:

ENGERGIEAUSWEIS:
-Verbrauchsausweis
-Endenergiebedarf: 72,9 kWh/(m²a)
-Klasse B
-Erdgas E
-Baujahr Wärmeerzeuger: 2000
-Warmwasser enthalten
-gültig bis 05.08.2033

___

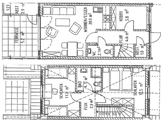
Reihenmittelhaus mit 3 Schlafzimmern!

Das geräumige Reihenmittelhaus wurde im Jahr 2000 fertiggestellt und verfügt im Erdgeschoss
über einen großen hellen Wohnraum mit Essbereich und eine voll ausgestatteter Küchenzeile,
die allen nötigen Komfort bietet. Zusätzlich befindet sich im Erdgeschoss ein Gäste-WC und
Schlafzimmer mit einem Einzelbett.

Selbstverständlich verfügt das Ferienhaus über eine einladende möblierte Südterrasse, die
zum Verweilen einlädt. Neben einem Außenabstellraum an der Terrasse befindet sich ein
weiterer kleiner Abstellraum im Eingangsbereich.

Im Obergeschoss befindet sich ein Schlafzimmer mit Doppelbett und ein Schlafzimmer mit zwei
Einzelbetten. Ein innenliegendes Duschbad finden Sie ebenfalls auf der 1. Etage. Der
Spitzboden dient als zusätzliche Abstellfläche und ist über eine Einschubtreppe zugänglich.

Das Haus befindet sich in einem gepflegten Zustand und ist komplett gefliest. Eine neue
Heizung wird bis zur Übergabe eingebaut.

Das Haus ist für 5 Personen eingerichtet und wird inkl. des vorhandenen Mobiliars verkauft.
Die Angabe der Nebenkosten beinhaltet sowohl das Hausgeld aus auch die privat zu zahlenden
Nebenkosten (Strom, Wasser, Gas, Grundsteuer, Gebäudeversicherung).
Ein PKW-Stellplatz auf dem gemeinschaftlichen Parkplatz ist im Kaufpreis enthalten.

___

"Seepark Burhave"
Nahezu direkt hinter dem Nordseedeich, neben dem Kurhaus (Haus des Gastes) und der
Spielscheune, nur 200 m vom Strand und ffn-Nordseelagune entfernt, liegt das Feriendorf
„Seepark Burhave“ mit 113 Ferienhäusern (jeweils in 2 bis 4 Einheiten gruppiert, 23
Ferienhäuser sind im Stile eines Landgutes gebaut).

Zwei schicke Reetdachhäuser mit Ladenzeilen (Restaurant, Bäckerei, Imbiss, …) im Erdgeschoss
schließen den Seepark zur Strandallee ab. In den Obergeschossen befinden sich
Ferienwohnungen. Diese reizvollen, mit Reet gedeckten Nordseehäuser, bilden die Promenade
des Seepark Burhave.

Anlagenausstattung:
Hallenschwimmbad mit Sauna und Dampfsauna. In der Nähe liegt der Scheunenpark.

Besonders ansprechend für die Vermarktung an Feriengäste - Kostenfrei nutzbare
Freizeitangebote: Spielscheune und ffn-Nordseelagune

Lagebeschreibung
An drei Seiten vom Wasser umgeben, sorgen Meer, Luft und salzige Brisen für das gesunde,
typische „Inselklima“. Wer hier Ruhe und Erholung sucht findet sie genauso wie
erlebnisreiche Tage mit Aktion gespickt. Die Küste, Land und Leute, kulturelle Schätze
dieser Region zu entdecken, wird jedem ob klein oder groß noch lange in Erinnerung bleiben.
Egal wie oft es Sie hierher zurück ziehen wird, seine Faszination verliert dieses Fleckchen
Erde nie.

Kontaktdaten:
Name: Jennifer Lutz
Telefon: 0228/9190032
Fax: 0228-258176
E-Mail: vertrieb@hp-ferienimmobilien.de
Homepage: www.hp-ferienimmobilien.de

Zu den Verkaufsangeboten unserer H채user und Wohnungen zurück zu den Verkaufsangeboten
Home | Verkaufsangebote | Vermietung und Verwaltung | Steuer und Service | Die Ferienimmobilie | Über uns
Kontakt | Impressum | Datenschutz