... zuhause sein, wo andere Urlaub machen!

     

Verkaufsangebote:

BOW 1.25:  Ferienwohnung im Feriengebiet Ostsee
Bild : 1  2  3  4  5  6  / Grundriss  

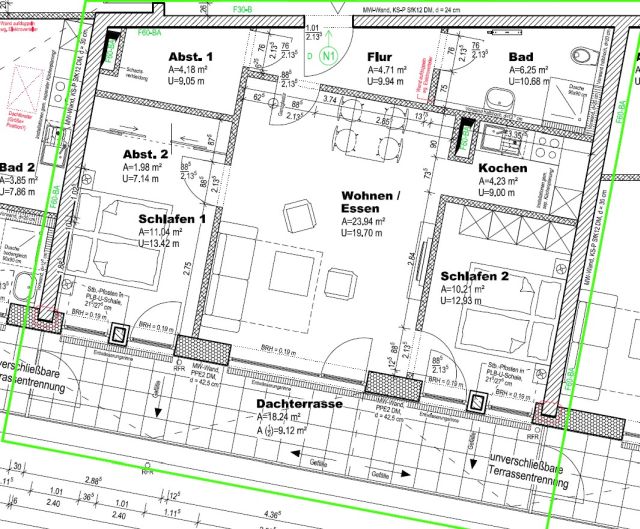
Grundriss des Objektes
Zoom
Adresse
PLZ: 24376
Ort: Kappeln
Ferienregion: Ostsee
Bundesland: Schleswig-Holstein
Land: Deutschland
Objektinformationen:
 
Finanzen           Wohnungsdaten              Details
Preis: 449500 €   Wohnfläche: 75 m²   Fahrstuhl: vorhanden
Mieteinnahmen pro Jahr ca.: 15000 €   Zimmer: 3   Balkon: vorhanden
Nebenkosten pro Monat ca.: 510 €   Schlafzimmer: 2   Terrasse: -
bisher vermietet: ja   Baujahr: 2017   Stellplatz: Garage/Tiefgarage
Provision (incl. gesetzl. MwSt.): 3,57 %   Etage: 3.OG   Kamin: -
         Schwimmbad: vorhanden

Beschreibung:

Hochwertig eingerichtete 3-Zimmer-Penthouse-Wohnung mit großen Fensterfronten und traumhaften seitlichen Blick Richtung Hafen und Ostsee.

Sie bietet einen großen, hellen Wohnraum mit Doppelbettcouch und einem separaten
Essplatz. Zum Wohnraum hin offen und doch räumlich getrennt befindet sich die moderne, gut ausgestattete Küche, welche keine Wünsche offen lässt.

Die 2 Schlafzimmer sind mit Boxspring-Doppelbetten ausgestattet und lassen keinen Komfort vermissen.

Außerdem bietet die Wohnung ein Badezimmer mit Dusche und WC sowie ein Gäste-WC.

Zur großzügigen Dachterrasse haben sie aus dem Wohnzimmer sowie aus beiden Schlafzimmern Zugang und Sonne den ganzen Tag.

Im Hause befindet sich ein zu der Wohnung gehörender, günstig gelegener Tiefgaragenstellplatz, welcher bequem mit dem Aufzug zu erreichen ist.

Die Wohnung ist für eine Belegung mit 6 Personen eingerichtet und ausgestattet und wird inkl. des gesamten Inventars veräußert.

Energiebedarfsausweis gültig bis 04.04.2028: wesentl. Energieträger Holz-Pellets u. Erdgas, Endenergiebedarf 73 kWh/m²a, Klasse B, Warmwasser enthalten.


Sie Lage
Die „Residenz Bollwark“ befindet sich in einer einmaligen Lage in einer wunderschönen Landschaft im Nordosten Schleswig-Holsteins, direkt zwischen Schlei-Mündung und Ostsee gelegen, im OstseeResort Olpenitz.

Ganz in der Nähe liegt das Städtchen Kappeln mit vielen kulturellen Angeboten, einem Schwimmbad, Einkaufsmöglichkeiten und Europas letztem verbliebenen Heringszaun. Jedes Jahr am Himmelfahrtswochenende werden in Kappeln die Heringstage gefeiert – ein unvergessliches Erlebnis!

Rund um Olpenitz erstreckt sich der Naturpark Schlei mit einer weiten, ursprünglichen Natur und einer faszinierenden Tier- und Pflanzenwelt, die Sie wunderbar zu Fuß oder mit dem Rad erkunden können. Zum Beispiel über den Wikinger-Friesenweg oder den Ostseeküsten-Radweg, der auf über 400 Kilometern die Städte Flensburg und Lübeck verbindet.


Sonstiges
Diese Wohnung eignet sich hervorragend zur Vermietung an Feriengäste. Die Anmeldung eines Erstwohnsitzes ist nicht möglich, ein Zweitwohnsitz darf angemeldet werden.

Nutzen Sie unsere jahrelange Erfahrung, unsere Kontakte und unseren Erfolg, um Ihre Ferienimmobilie zu vermieten. Wenn Sie es wünschen, kümmern wir uns um fast ALLES, angefangen von der Vermietung über Reinigung bis hin zur Instandhaltung.

Kontaktdaten:
Name: Jennifer Lutz
Telefon: 0228/9190032
Fax: 0228-258176
E-Mail: vertrieb@hp-ferienimmobilien.de
Homepage: www.hp-ferienimmobilien.de

Zu den Verkaufsangeboten unserer H채user und Wohnungen zurück zu den Verkaufsangeboten
Home | Verkaufsangebote | Vermietung und Verwaltung | Steuer und Service | Die Ferienimmobilie | Über uns
Kontakt | Impressum | Datenschutz